Area of application: Air conditioning of the offices
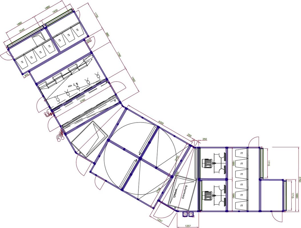
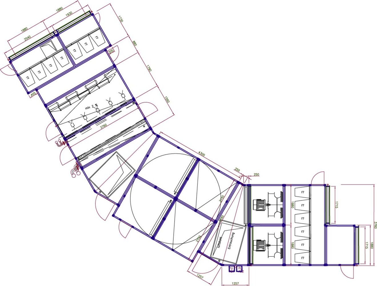
Installed devices: 3 Blue Line eco-R devices
Special features: Full air conditioning units with highly individualized housing designs, totaling 290 000 m³/h. The units were designed and installed as part of a complete refurbishment. Per year, the use of our units with highly efficient technology saves 1,500,000 kWh.

